Bulnes 2100 |ALT2454
Principal
| Precio: | U$S 135.000 |
|---|---|
| Operacion: | Venta |
| Tipo: | Semipiso |
| Barrio: | Palermo |
| Antigüedad: | 50 años |
| Baños: | 2 |
| Ambientes: | 3 |
| Dormitorios: | 2 |
| Estado: | Muy Bueno |
| Orientación: | Noroeste |
| Disposición: | Contrafrente |
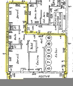
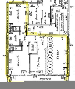
| Sup. Propia: | 63,45 m2 |
| Sup. Cubierta: | 55,24 m2 |
| Sup. Balcón: | 8,21 m2 |
APTO PROFESIONAL. APTO CREDITO. A metros del ALTO PALERMO Shopping, departamento de 3 ambientes, ubicado en el 3er piso al contra frente. Características: - 3 ambientes - Baño completo - Toilette - Balcón corrido - Agua caliente individual por termotanque y calefacción individual. - Ubicación privilegiada, a pasos del Alto Palermo Shopping Todas las medidas son aproximadas y las definitivas surgirán de la escritura traslativa de dominio. El edificio cuenta con accesibilidad para personas con movilidad reducida (Ley 5115). Claudio García Matrícula N°3738 CUCICBA..
Caracteristica
- Apto Profesional
- Balcón
Detalle
- Agua caliente: Individual por termotanque.
- Ascensor: 1-1
- Balcón: 8 x 1
- Baños: 1 completo + toilette
- Calefacción: Individual.
- Cantidad Pisos: 9
- Cochera: No
- Cocina: 3,20 x 2
- Deptos. por Piso: 2
- Dormitorio: 3,30 x 3 con placard a balcon al contrafrente
- Dormitorio: 3,11 x 2 70 con placard al Aire y luz
- Entrada: Buena
- Expensas: 425000
- Hall: Si
- Lavadero: En Balcón.
- Living: 5,40 x 3 a balcón contrafrente.
- Palier: Comun
- Placards: Si
- Tipo Pisos: Parquet de madera
- Toilette: Si.
Mapa